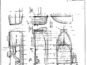
Skiff
Share album
Skiff
Skiff